

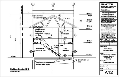
Our office completed all the require drawings for a new garage and garage suite. We also coordinate the entire Edmonton permit process for our client including the Development Permit and Building Permit. As a part of our Edmonton permit services, we engaged and coordinated with the require Land Surveyor and Structural Engineer as well.
We also handled and resolve all the permit issues during the City permit review process including, public consultation, variances, zoning Bylaw and code issues with the City.
If you are developing a new garage or a garage suite or a combined structure or you have an existing garage without permits, we can assist you and guide to complete the Edmonton permit process.